Ritningar/3D-modeller

Nedan länkar till ritningar för respektive lägenhet och radhus inom området.
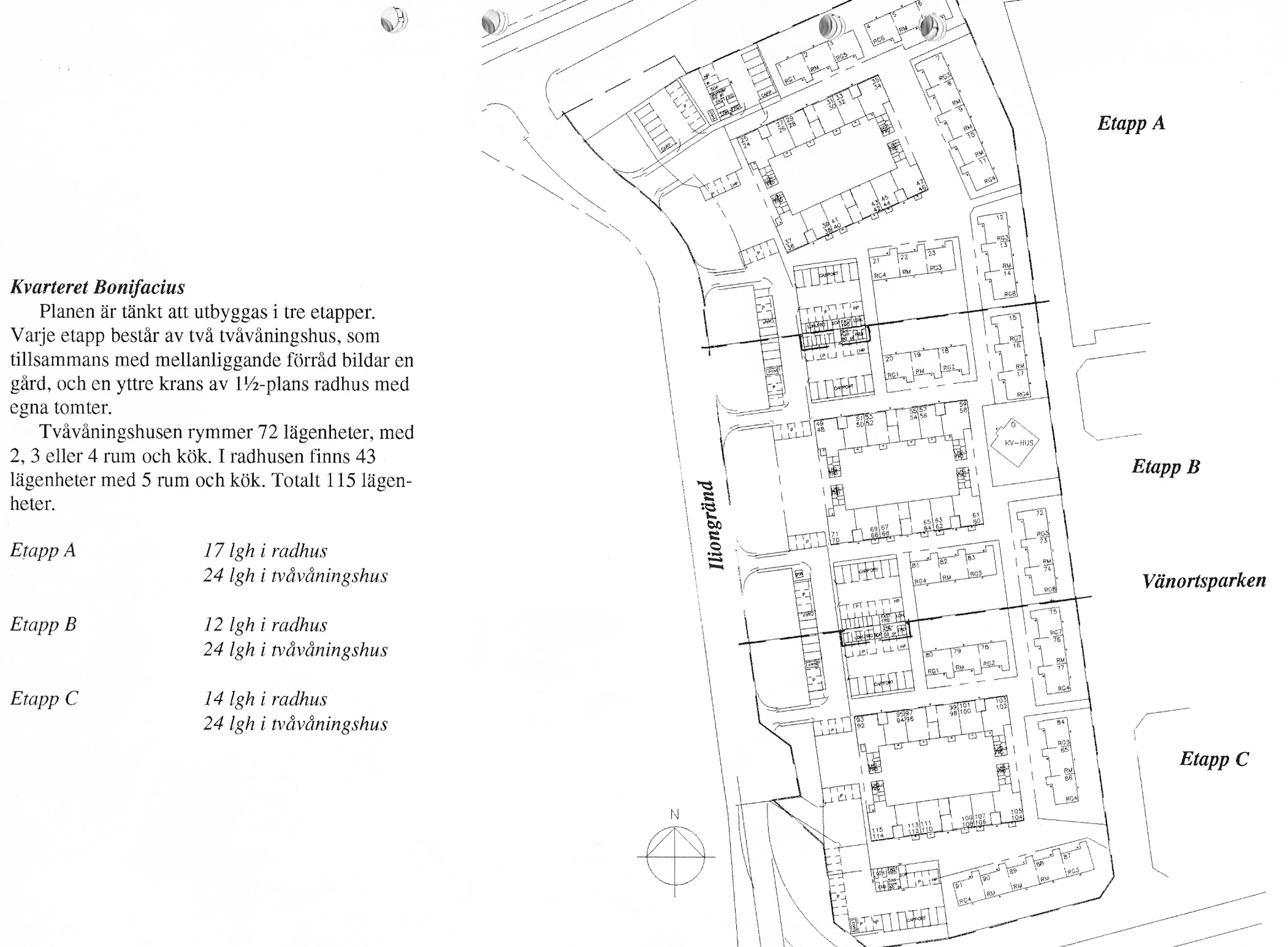
För överskådlighet finns områdesritningar med lägenhetsnummer inskrivna.

 

Områdesritningar

Bonifacius (A B C)
Bonifacius A (norra delen)
Bonifacius B (centrala delen)
Bonifacius C (södra delen)

 

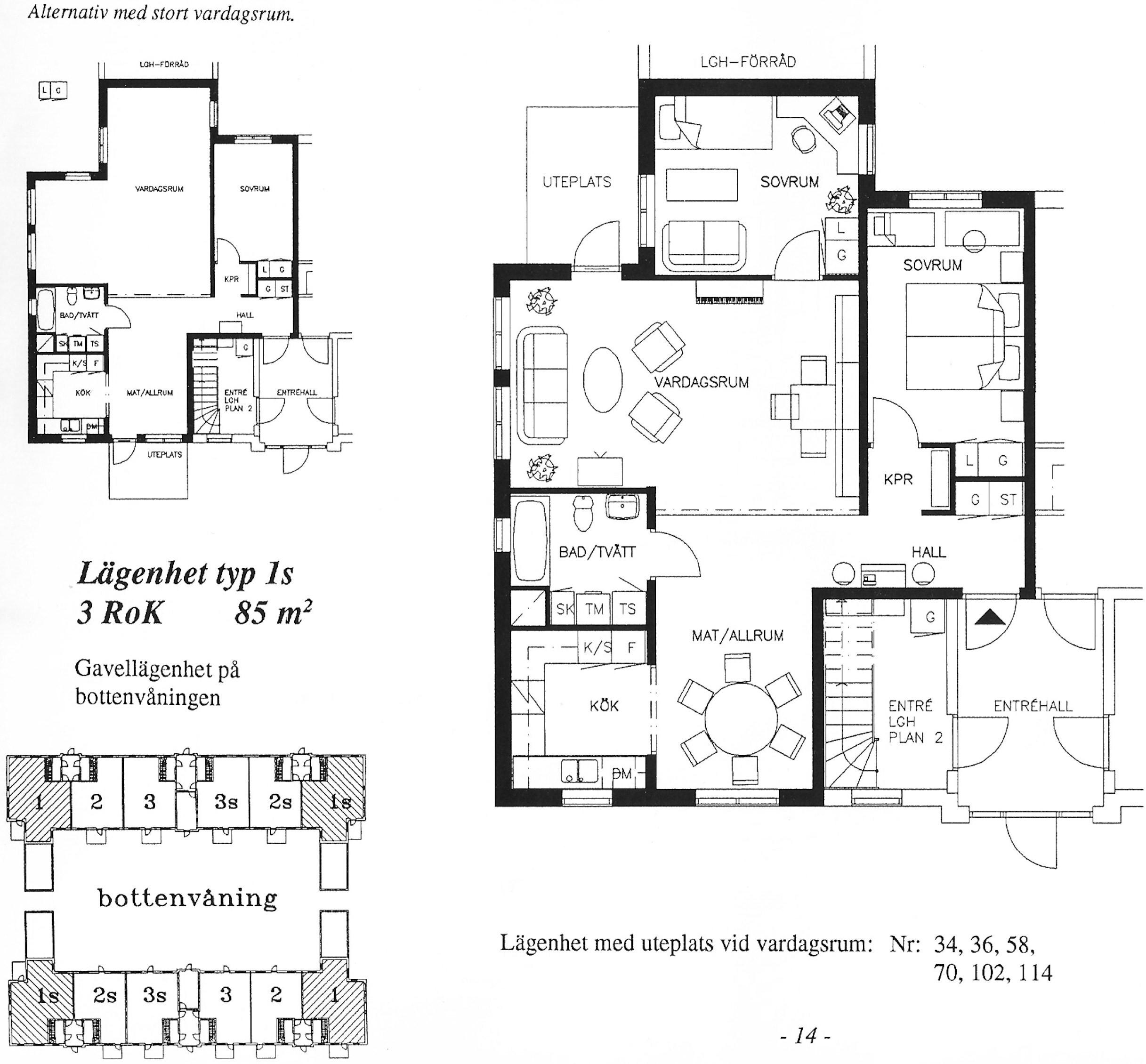
Flerfamiljshus

72 stycken lägenheter i storlekar 2, 3 och 4-rum.

2 Rum o Kök 65* m² typ 2 (genomgående lägenhet, bottenvåning) [3D-modell]
2 Rum o Kök 65* m² typ 2s (genomgående lägenhet, bottenvåning) [3D-modell]
2 Rum o Kök 70* m² typ 3 (genomgående lägenhet, bottenvåning) [3D-modell]
2 Rum o Kök 70* m² typ 3s (genomgående lägenhet, bottenvåning) [3D-modell]
2 Rum o Kök 81* m² typ 6 (genomgående lägenhet, plan2) [3D-modell]
3 Rum o Kök 85* m² typ 1 (gavellägenhet, bottenvåning) [3D-modell]
3 Rum o Kök 85* m² typ 1s (genomgående lägenhet, plan 2) [3D-modell]
3 Rum o Kök 87* m² typ 5 (genomgående lägenhet, plan 2) [3D-modell]
3 Rum o Kök 87* m² typ 5s (genomgående lägenhet, plan 2) [3D-modell]
3 Rum o Kök 97* m² typ 4 (gavellägenhet, plan 2) [3D-modell]
3 Rum o Kök 97* m² typ 4s (gavellägenhet, plan 2) [3D-modell]
4 Rum o Kök 116* m² typ 7 (genomgående lägenhet, plan 2) [3D-modell]

 

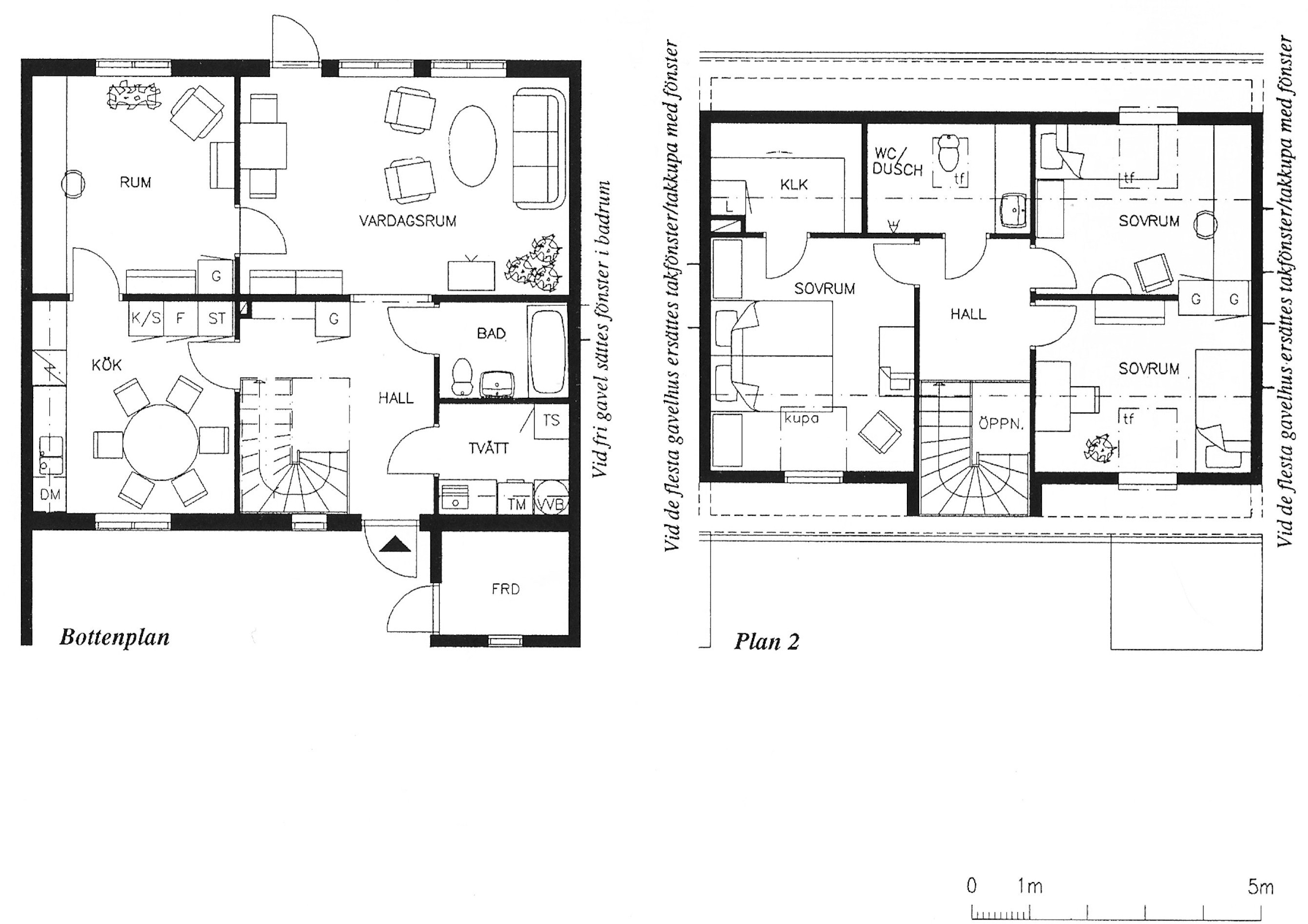
Radhus

43 stycken, 4-5 rum o kök, 122* m².

Typ R översiktdetaljritning [3D-modell]
Typ Rs översiktdetaljritning [3D-modell]

 

* Måttangivelserna enligt ekonomisk plan